
Neue Teutendorfer Siedlung – Zwei Quartiere mit Weitblick
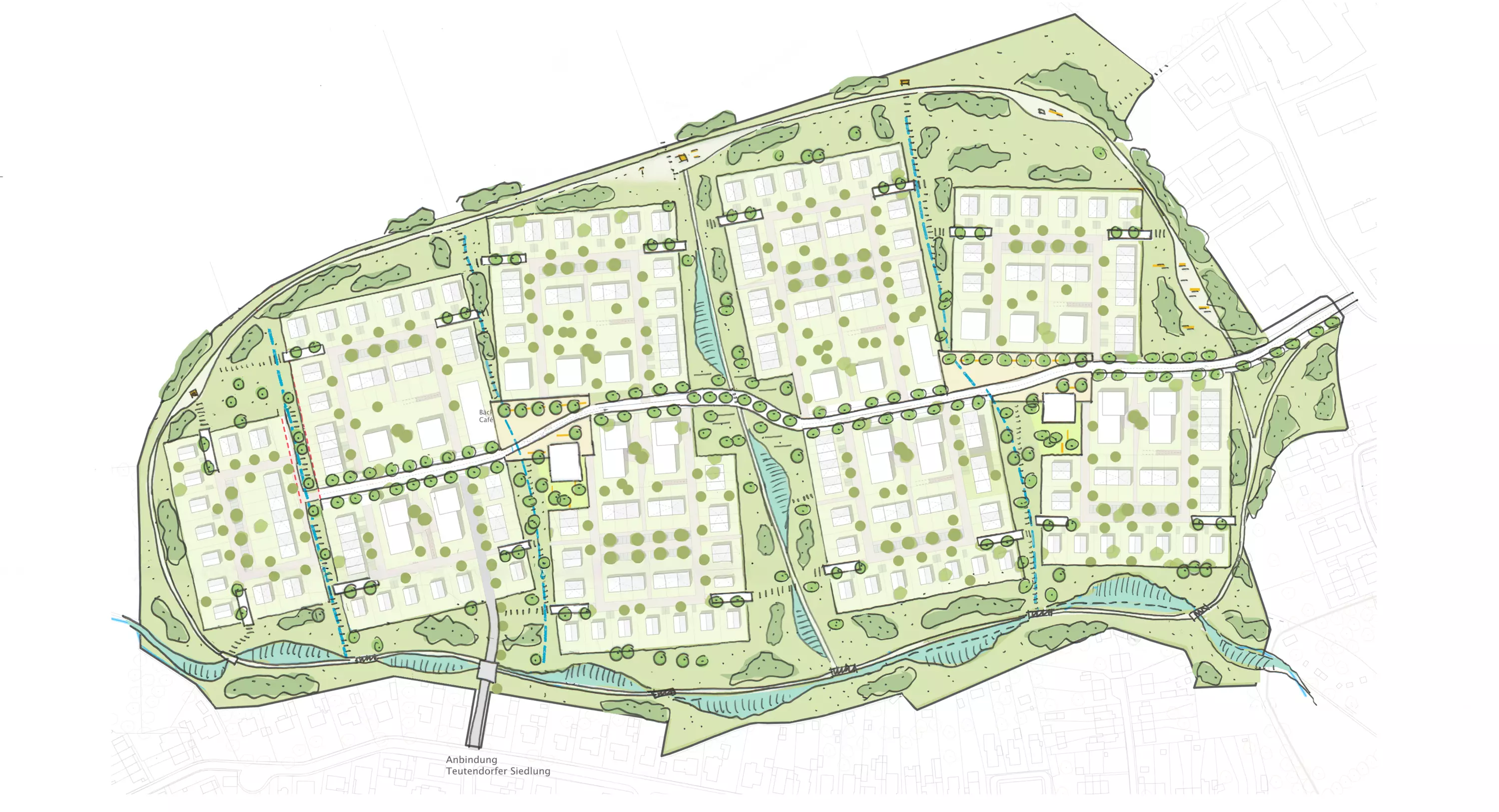
Am nordwestlichen Rand von Travemünde entsteht eine verkehrsberuhigte Wohnsiedlung mit prägnanter Identität. Die Bebauung mit Einfamilien-, Doppel-, Reihen- und Stadthäusern sowie Geschosswohnungen schafft eine durchmischte Nachbarschaft mit hohem Wiedererkennungswert. Zwei zentrale Quartiersplätze – als moderne Dorfplätze gedacht – bilden das soziale Herz des Viertels.
Key Info
Projektstart
2018
Fertigstellung
2018
Kategorie
Quartiere, Städtebau, Wettbewerbe
Auftraggeber
LEG Entwicklung GmbH, Kronshagen
Größe
Plangebietsgröße 27 ha, Nettobaulandfläche 12 ha, BGF ca. 84.000 qm, Wohneinheiten ca. 570
Standort
Travemünde
Auszeichnung
1. Preis Kooperatives Workshopverfahren Neue Teutendorfer Siedlung in Lübeck-Travemünde
Fachplanung
Stadtplaner: Büro claussen seggelke, Hamburg
Freiraumplanung
plateau landschaftsarchitekten, Hannover
Planungsleistung
Teilnahme an kooperativen Workshopverfahren, Funktionsplanung, Begleitung des Bebauungsplanverfahrens

Gemeinschaftssinn & Freiraum-Typologie
Die neue Siedlung greift die Struktur der bestehenden Teutendorfer Siedlung auf und entwickelt sie weiter. Die kleinteiligen Nachbarschaften sind so angeordnet, dass sie sich harmonisch in die Landschaft einfügen, aber auch eigenständig als Quartiere funktionieren. Das Herzstück bildet jeweils ein moderner Dorfplatz. Hier entstehen lebendige Treffpunkte mit Cafés, Bäckereien, Kiosken und Kindertagesstätten, die zum Austausch einladen und das Miteinander der neuen Wohnsiedlung stärken.
Leicht verdrehte Baukörper erzeugen spannende Raumbeziehungen und prägen ein lebendiges Straßenbild. Die dazwischenliegenden Grünflächen verbinden das Quartier mit der umgebenden Landschaft und bieten geschützte Aufenthaltsorte für Spiel, Begegnung und Erholung. Der zentrale Grünzug, der sich an der natürlichen Topografie orientiert, fungiert als Rückgrat der Siedlung und leitet den Freiraumbezug in das gesamte Quartier weiter.

Lebendige Dachlandschaften
Die giebelständigen Satteldächer nehmen die Topografie auf und formen eine abwechslungsreiche Dachlandschaft, die sich in die Hanglage einfügt. Die bewusste Setzung der Baukörper schafft spannende Versprünge entlang der Traufkanten, wodurch eine kleinteilige, aber harmonische Silhouette entsteht. Durch sanfte Dachneigungen entsteht die Möglichkeit zur Begrünung einzelner Flächen, die sowohl das Mikroklima verbessern als auch als zusätzliche Retentionsflächen für Regenwasser dienen. Besonders an den Quartiersplätzen sorgen die variierenden Höhen für eine spannende architektonische Dynamik, die sich in die Umgebung integriert, ohne zu dominant zu wirken.

Rudolf Rüschof
Mit lebendigen Plätzen, einer harmonischen Dachlandschaft und kurzen Wegen schafft die neue Teutendorfer Siedlung ein Quartier, das Gemeinschaftssinn und nachhaltige Lebensqualität vereint.
Kurze Wege
Die neue Teutendorfer Siedlung ist so geplant, dass sie optimal erschlossen, aber zugleich verkehrsberuhigt ist. Die Hauptstraße durchzieht das Quartier in Nord-Süd-Richtung als sanft geführte Landschaftsstraße. Durch gezielte Verschwenkungen verlangsamt sich der Verkehrsfluss, wodurch die Straße sich organisch in das Siedlungsbild einfügt. Die beiden identitätsstiftenden Quartiersplätze liegen an dieser Haupterschließung und dienen als Knotenpunkte für die interne Mobilität. Von hier aus verzweigen sich kleine, verkehrsberuhigte Wohnhöfe und Mischflächen, die eine sichere und angenehme Aufenthaltsqualität bieten. Fuß- und Radwege sind so angelegt, dass sie kurze Verbindungen zwischen den Nachbarschaften ermöglichen und eine nachhaltige Mobilität fördern.

Ansprechpartner*in
David Sommer
Dipl.-Ing. Architekt, Stadtplaner
