
Ehemalige Maschinenzentralstation in der Hamburger Speicherstadt

Ehemalige Maschinenzentralstation in der Hamburger Speicherstadt
Key Info
Projektstart
2017
Fertigstellung
2017
Kategorie
Arbeiten, Wettbewerbe
Status
1. Preis im hochbaulichen Realisierungswettbewerb
Auftraggeber
HHLH Hamburger Hafen und Logistik AG
Größe
3.100 m2 (publikimsbezogene Nutzung EG, Büro- und Dienstleistungsnutzung OGs)
Standort
Hamburg Speicherstadt, Sandtorkai
Aufgabe
denkmalgerechte Sanierung der ehem. MZS in der Speicherstadt (UNESCO Weltkulturerbe), Umnutzung und Erweiterung für eine öffentlichkeitswirksame Nutzung
Auszeichnung
1. Preis hochbaulicher Realisierungswettbewerb
Visualisierung
bloomimages

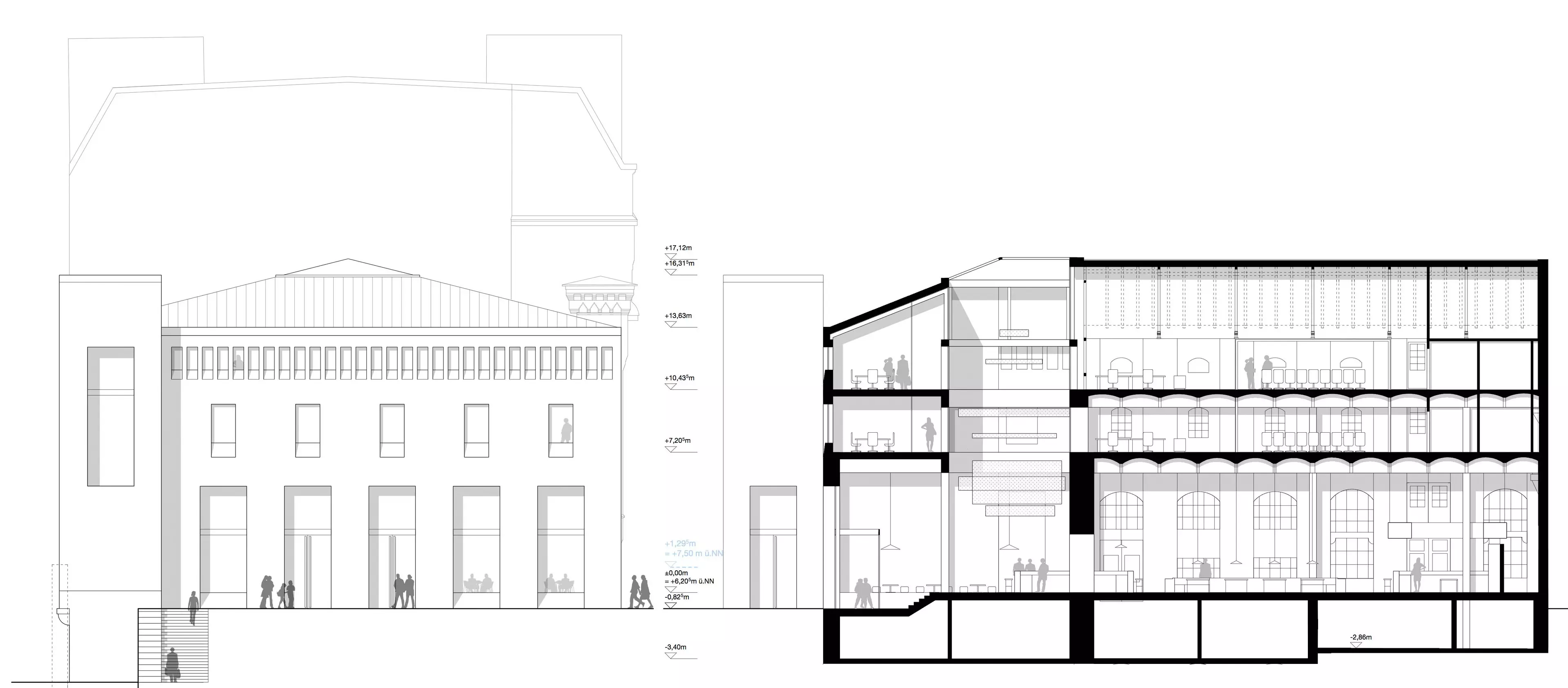
Unser siegreicher Entwurf für den Neubau, der die ehemals kriegszerstörte Kubatur der ehemaligen Maschinenzentrale ergänzt.
Als architektonische Hommage an die Geschichte schafft der neue Turm ein harmonisches Zusammenspiel mit dem benachbarten Kesselhaus und prägt den neu gestalteten Platz nördlich davon. Der Platz zwischen Fleet und Kesselhaus wird neu gestaltet, der historische Fleetanleger wiederbelebt. Der Haupteingang des Neubaus definiert zusätzlich die Ostseite des Platzes. Die Platzgestaltung orientiert sich an den historischen Vorgaben und schafft eine einladende Atmosphäre für die öffentlichen Nutzungen. Die Fassaden des Neubaus nehmen die vertikalen Fensterformate der Speicherstadt auf und schaffen eine harmonische Verbindung zum Altbau. Die tragenden Bauteile des Neubaus folgen dem bewährten Konstruktionsprinzip des Bestandes, wodurch eine plastische Ähnlichkeit entsteht. Ein Lichtatrium verbindet Alt- und Neubau und sorgt für eine optimale Belichtung aller Geschosse. Im Erdgeschoss entsteht ein Veranstaltungs- und Gastronomiebereich, der die Atmosphäre der ehemaligen Maschinenhalle aufgreift. Ein Hochwasserschutz im Untergeschoss sowie Brandschutzmaßnahmen gewährleisten die Sicherheit des Gebäudes. Die wirtschaftliche Bauweise des Neubaus ermöglicht eine kostengünstige Ergänzung des Bestandes und schafft in den Obergeschossen hochwertige Büronutzungen.

