
Bonn-Dottendorf
In Bonn-Dottendorf entsteht ein gemischt genutztes Wohnensemble mit klarer städtebaulicher Haltung und feinfühliger Einbindung in den Bestand. Barrierefreier Wohnraum, soziale Mischung und ein integrierter Nahversorger bilden das Herzstück eines nachhaltigen Quartiers. Serielle Bauweise, Low-Tech-Konzepte und trennbare Fassaden schaffen Effizienz – ökologisch wie ökonomisch.
Key Info
Projektstart
2025
Fertigstellung
2025
Kategorie
Wettbewerbe, Wohnen, Quartiere
Auftraggeber
WID R1 Bonn GmbH, Cresco Projektentwicklungs GmbH
Größe
16.000 m2 BGF-R
Standort
Bonn-Dottendorf - "urban dot"
Aufgabe
Entwicklung eines Wohnkomplexes mit Nahversorger in Bonn-Dottendorf
Visualisierung
RenderLab

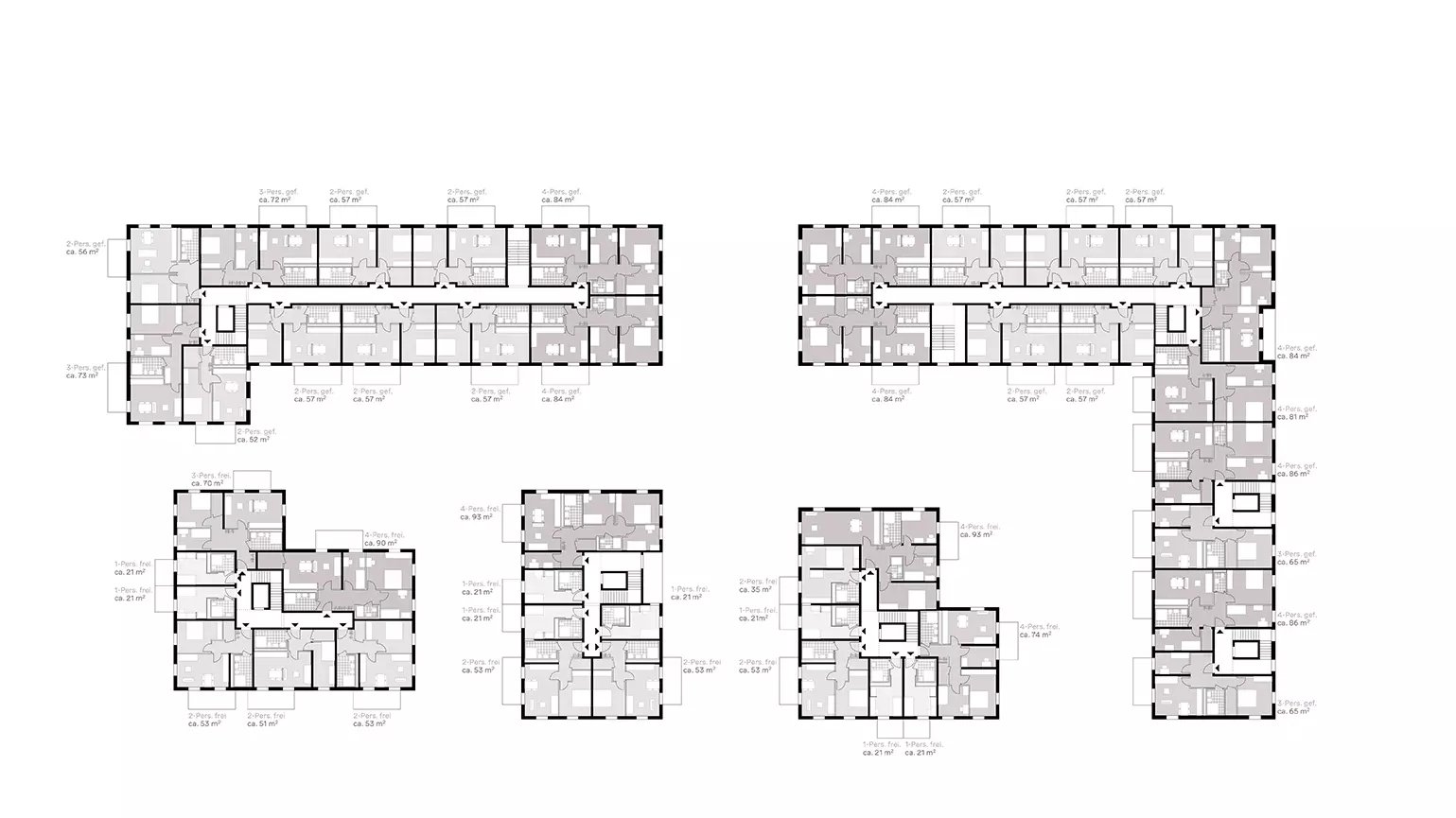
Städtebauliche Setzung
Quartiersanker & Vermittler
Das vorgeschlagene Wohnensemble positioniert sich zentral innerhalb des übergeordneten städtebaulichen Masterplans und nimmt eine verbindende Rolle zwischen den verschiedenen Quartiersbereichen ein. Zur Dottendorfer Straße hin wird durch eine klare bauliche Fassung eine städtebaulich prägnante Kante ausgebildet. Gleichzeitig vermittelt das Ensemble im Süden sensibel zu den kleinteiligeren Bestandsnutzungen und schafft so eine harmonische Einbindung in den Kontext.
Gemeinsam mit der Gewerbehalle des benachbarten BaseCamp Hostels bildet der Entwurf einen neuen Quartiersplatz aus, der als identitätsstiftendes Entrée für den südlichen Teil des Gebiets dient und eine direkte Anbindung an die nördlichen Quartiersbereiche entlang der Dottendorfer Straße herstellt. Im nördlichen Baublock ist eine Nahversorgungsnutzung vorgesehen, welche zur Belebung der Platzfläche beiträgt und die zentrale Lage sowie den Charakter des Quartiersknotens am „Boulevard“ stärkt. Der markant gesetzte Eingang zum Nahversorger unterstützt dabei zusätzlich die Ausbildung einer lebendigen und gut auffindbaren Quartiersmitte.


Konzeption
Wohnraum mit System
Der Entwurf sieht eine Mischung aus geförderten und freifinanzierten Mietwohnungen vor, mit dem Ziel, bezahlbaren Wohnraum in hoher architektonischer Qualität zu schaffen. Die Gebäude basieren auf einer kostenbewussten, seriellen Grundstruktur, die sich an den Vorgaben eines Systemherstellers orientiert. Die Konstruktion erfolgt in hohem Maße vorgefertigt – mit Decken-, Stützen-, Treppen- und Balkonfertigteilen sowie industriell hergestellten Badmodulen. Dadurch kann ein schneller und wirtschaftlicher Bauablauf realisiert werden. Trotz Vorfertigung wird eine differenzierte Gestaltung mit hohem gestalterischem Anspruch erzielt. Zusätzlich sind sämtliche Wohnungen barrierefrei geplant.

Die Freisitze der Wohnungen werden als Balkone mit Zugstäben ausgebildet, vertikal gestapelt und bei Bedarf mit Schallschutzverglasungen versehen. Loggien sind ausschließlich punktuell an der Platzfassade vorgesehen, um hier eine ruhige Erscheinung und klare Raumkante zu erzielen. Die Staffelung der Gebäude wird ausschließlich durch das Weglassen einzelner Wohnungen in den oberen Geschossen erreicht – auf jegliche vertikale oder horizontale Warm-Kalt-Versprünge wird aus Kostengründen und im Sinne der Nachhaltigkeit bewusst verzichtet.
Insbesondere zur Dottendorfer Straße und zum Quartiersplatz hin kommen verglaste Balkone in Kombination mit Prallscheiben zum Einsatz, um die schutzbedürftigen Räume gegenüber Verkehr und gewerblicher Nutzung ausreichend abzuschirmen. Die Erschließung wurde hinsichtlich der Anleiterung durch die Feuerwehr exakt analysiert und optimiert; lediglich in den beiden Riegeln entlang der Dottendorfer Straße wird eine Mittelflurerschließung mit zwei baulichen Rettungswegen erforderlich.

David Sommer
Seriell und Low-Tech – und trotzdem gilt: Der Mensch steht im Mittelpunkt unserer Planung.

Fassade und Materialisierung
Robust & Rückbaubar
Die Fassadengestaltung orientiert sich an den gestalterischen Vorgaben des Quartiers und setzt auf eine hochwertige, nachhaltige Materialität mit haptischer und visueller Tiefe. Zum Einsatz kommt eine Klinker-Schindelfassade, die durch Intarsien/Kassetten aus vertikaler Holzlattung (alternativ: Metallverkleidung in Stehfalz- oder Wellenoptik) akzentuiert wird. Die plastische Wirkung der Fassade entsteht durch ein expressives Schindelrelief, das gemeinsam mit tiefen Laibungsrahmen für ein lebendiges Spiel von Licht und Schatten sorgt – besonders bei Streiflicht.
Die klare Rasterung der Fensterlaibungen transportiert zugleich die serielle Struktur der Wohnungsgrundrisse nach außen. Die Vorhangfassade ist gemäß den Anforderungen des zirkulären Bauens sortenrein trennbar konzipiert – eine Verklebung oder Vermörtelung der Bauteile erfolgt nicht. Dies ermöglicht einfache Reparaturen, eine verlängerte Lebensdauer der Fassadenbauteile sowie eine Optimierung der Betriebskosten im Sinne günstiger Warmmieten.
Zwei warme, helle Klinkertöne in Kombination mit Holz- bzw. alternativ Metallintarsien erzeugen ein harmonisches, abwechslungsreiches Fassadenbild der beiden Baukörper. Das Sockelgeschoss ist gestalterisch ablesbar, die Hauseingänge sind offen, einladend und klar auffindbar gestaltet.

Nachhaltigkeit
Low-Tech, High Impact
Der Entwurf verfolgt einen Low-Tech-Ansatz als Effizienzhaus 55. Die Zuluft erfolgt über dezentrale Außenwanddurchlässe in Form von Laibungs- oder Rahmenaufsatzlüftern. Die Abluft wird über Küchen und Bäder abgeführt, wobei die zurückgewonnene Wärme zur Unterstützung der Heizungsanlage dient.
Die Baukörper sind kompakt konzipiert, ohne unnötige Versprünge, wodurch energetische Verluste minimiert und effiziente Grundrisse ermöglicht werden. Die Wohnnutzung im Erdgeschoss beginnt im Hochparterre, was sowohl der Privatheit als auch dem Überflutungsschutz bei Starkregen dient.
Die Dächer sind extensiv begrünt und kombinieren diese Fläche mit Photovoltaikanlagen sowie einer Retentionsfunktion zur Regenwasserbewirtschaftung. Die Retentionsdächer werden durch Rückstaurigolen ergänzt, wodurch ein aktiver Beitrag zum nachhaltigen Umgang mit Starkregenereignissen geleistet wird.
Auch die Fassade kann als Elementwand vorgefertigt werden und ist durch das System Vorhangfassade sortenrein trennbar, langlebig und hochwertig.